Student Services Building Renovation
About the Project
The project proposes to modernize the existing Student Services Building 9,000 assignable square footage (16,200 GSF). The Student Services Building will be vacated and available for the relocation of student services programs currently located in the temporary structures within the Parkside Complex, such as EOPS/CARE, the Wellness Center, Basic Needs, and Veterans Resource Center.
Project Renders
See renders of the proposed interior renovation.



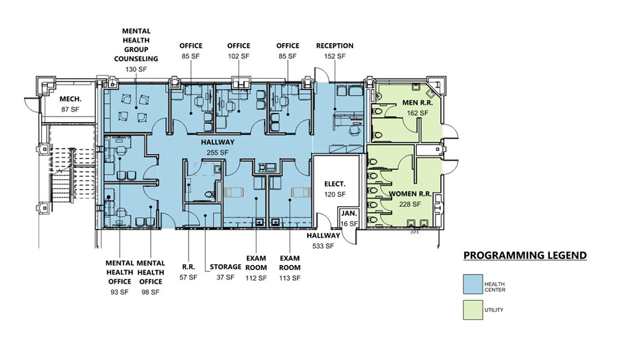
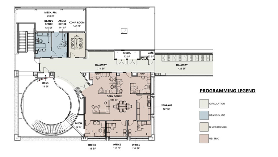
Proposed Floor Plans
The renovation will consolidate student services programs into the three-story building,
offer office and meeting spaces, as well as student gathering spaces.




At a Glance
Budget, project status, contributors and more.
Specifications
Location: Moreno Valley College
Status: Project under construction, expected completion 2025
Size: Interior renovation of 16,200 GSF
Budget: $8.8M Measure C Bond and Local Resources
Contributors
Architect: 19Six Architects
Construction Manager: Kitchell
Delivery Method: Design-Bid-Build